Agrandissez, transformez
ou rénovez votre maison

Des plans sur mesure pour donner une nouvelle vie à votre maison en Bretagne

POURQUOI CHOISIR L'EXTENSION ?

Extension de maison

Projets fréquents :
Agrandissement salon/cuisine, suite parentale, chambres supplémentaires, bureau, garage, aménagement pour personnes à mobilité réduite (PMR)

on vous explique tout

Tout savoir sur les extensions

Les types d'extensions

Construction accolée sur un seul niveau. Continuité avec l’habitation, accès direct au jardin.
Surface courante : 15 à 50 m²

Ajout d’un étage. Conserve le jardin, crée plus de surface. En ville, c’est une solution d’avenir avec la raréfaction des terrains constructibles. Possibilité de créer un logement supplémentaire indépendant (sous réserve structure et copropriété).

Prérequis : Fondations capables de supporter le poids (étude de structure obligatoire)
Surface courante : 30 à 80 m²

Transformation en espace habitable. Création de surface donc soumis à autorisation (sauf si plancher déjà en place mais non aménagé).

Prérequis : Hauteur disponible sous toiture minimum 1,80 m

Structure vitrée, luminosité maximale, délai court.

Attention : Gestion thermique complexe (chaud l’été, froid l’hiver). Solution à envisager avec précaution, même si techniquement réalisable.

Les démarches administratives

Les autorisations dépendent de la Surface de Plancher (SP) et/ou de l’Emprise au Sol (ES) créées.

Obligatoire pour :

  • Surface créée entre 5 m² et 20 m² (ou jusqu’à 40 m² en zone urbaine couverte par un PLU)


⚠️ Attention :
Si l’extension de plus de 20 m² porte la surface totale de la maison au-delà de 150 m², un permis de construire avec architecte devient obligatoire.

Exemples :

  • Maison de 130 m² + extension de 21 m² = 151 m² → Permis + Architecte obligatoire
  • Maison de 109 m² + extension de 40 m² = 149 m² → DP possible

Obligatoire pour :

  • Extension de plus de 20 m² (ou 40 m² selon zone)
  • Si la surface totale après travaux dépasse 150 m²Architecte obligatoire


Délai d’instruction :
2 mois

Points de vigilance

Contraintes réglementaires (valable en neuf également)

  • PLU : Emprise au sol, reculs, hauteur, style architectural
  • Lotissement : Cahier des charges souvent plus strict
  • Secteurs protégés : Abords monuments historiques (500 m)

Aspects techniques

  • Fondations et liaison existant/extension
  • Ouverture mur porteur (linteau, IPN)
  • Continuité isolation et étanchéité

Budget extension

Selon le type de travaux (plain-pied, avec étage, aménagement de combles), comptez de 1 200 € à 3 500 € / m².

Coûts additionnels fixes :

  • Ouverture mur porteur : 2 000 € à 5 000 €
  • Accès difficile au chantier
  • Plans et conception : 1 000 € à 2 500 €


Exemple :
Extension 25 m² = 30 000 € à 87 500 €

Durée : 6 à 10 mois (conception + chantier)

Les extensions de maison

Notre accompagnement

1.

Relevé de l'existant

Mesures traditionnelles ou scan 3D de votre maison actuelle. Plans de tous les niveaux, façades, coupes.

2.

Conception de l'extension

APS (Avant-Projet Sommaire) : Plusieurs propositions d’implantation, style, agencement

APD (Avant-Projet Définitif) : Version aboutie et finalisée de l’APS avant dépôt du dossier en mairie. Plans cotés, matériaux, descriptif technique.

 

3.

Dossier d'autorisation

Toutes les pièces nécessaires (DP ou PC) + attestation RE 2020 ou simplifiée selon surface.

Attestation RE 2020 (étude thermique) :
Obligatoire pour toute construction neuve/extension de plus de 50 m² de Surface Habitable (SH).
Pour moins de 50 m² : attestation simplifiée (sans étude thermique complète).

4.

Plans d'exécution

Plans de démolition, construction, reprise de l’existant, avec détails par et pour tous les corps d’état.

5.

Descriptifs et quantitatifs

Pour quantifier et comparer les devis des artisans afin de chiffrer le projet au mieux.

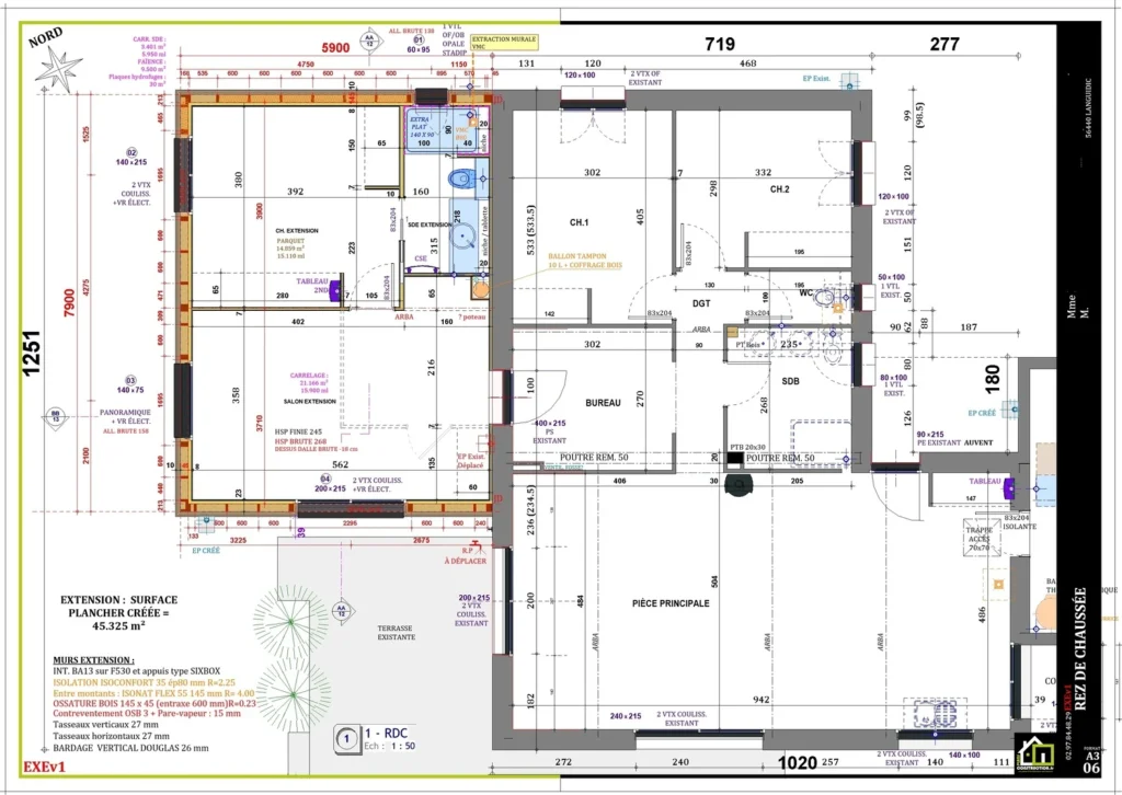
Quelques réalisations d'extensions et rénovations

POURQUOI RÉNOVER UNE MAISON ?

Rénovation de maison

Place à la rénovation

Tout savoir sur les rénovations

Travaux courants

Budget rénovation

TypeBudget au m²Exemple 100 m²
Rafraîchissement200 € à 500 €20 000 € à 50 000 €
Rénovation complète800 € à 1 500 €80 000 € à 150 000 €
Rénovation lourde1 200 € à 2 000 €120 000 € à 200 000 €

Coûts additionnels :

  • Reprise structure : 3 000 € à 8 000 €
  • Isolation complète : 8 000 € à 20 000 €
  • PAC : 8 000 € à 15 000 €
  • Électricité : 80 € à 120 € / m²
  • Cuisine : 5 000 € à 20 000 €

Les types de rénovations

Peintures, sols, cuisine, salle de bain, menuiseries

Budget :
200 € à 500 € / m² | Durée : 1 à 3 mois

Redistribution espaces, électricité, plomberie, isolation, chauffage, finitions

Budget : 800 € à 1 500 € / m² | Durée : 4 à 10 mois

Restructuration + gain de surface en une seule fois

Durée :
6 à 12 mois

Aides financières

MaPrimeRénov’ – Isolation, chauffage performant, VMC
CEE – Primes fournisseurs d’énergie
Éco-PTZ – Prêt sans intérêts jusqu’à 50 000 €
TVA 5,5 % – Sur travaux de rénovation énergétique

Notre conseil en transparence

Démolition-reconstruction : parfois plus pertinent

Pour certaines rénovations très lourdes – avec ou sans extension – (structure compromise, isolation inexistante, réseaux obsolètes), démolir et reconstruire peut s’avérer plus économique.

Pourquoi ?

  • Imprévus coûteux en rénovation (budget qui grimpe)
  • Travail plus long et complexe sur l’ancien
  • Contraintes de structure existante
  • Résultat : après 200 000 € de rénovation, vous avez une vieille maison refaite. Pour le même prix, ou avec un peu plus, du neuf avec garanties, isolation RE 2020, agencement optimal.


Notre rôle :
Vous présenter objectivement les deux scénarios avec estimations chiffrées pour décider en connaissance de cause.

La rénovation de maison

Notre accompagnement

1.

Diagnostic et relevé

Visite sur site, état des lieux, identification pathologies et murs porteurs. Relevé précis (mesures ou scan 3D).

2.

Conception du projet

APS : Plans existant + projet + démolition + création
APD : Plans finalisés, façades modifiées, choix matériaux

3.

Autorisations si nécessaire

Déclaration préalable (modification extérieure) ou permis de construire (structure, volumétrie).
Souvent aucune autorisation pour travaux intérieurs uniquement.

4.

Plans d'exécution

Plans de démolition, création, électricité, plomberie, chauffage, isolation, calepinage

5.

Documents pour chantier

Descriptif, quantitatifs, planning prévisionnel

Questions fréquentes

Rénovation légère : possible.
Rénovation lourde : il est conseillé de libérer le logement.

800 € à 2 500 € selon complexité (surface, modifications, relevé existant). Devis gratuit après visite.

Non. Travaux intérieurs sans modification façade ni structure : aucune autorisation. Changement extérieur : déclaration préalable minimum.

Nous l’identifions lors du relevé. En cas de doute, étude de structure recommandée.

Nous présentons une analyse comparative avec estimations chiffrées. Si rénovation > 70-80 % du coût du neuf avec résultat moins performant, démolition souvent plus pertinente.

Oui pour les travaux de rénovation énergétique. Nécessite des professionnels RGE.

Prêt à agrandir, transformer ou rénover votre maison ?

Contactez-nous pour un premier échange gratuit sur votre projet d’extension ou de rénovation.